🔍 La Historia de Este Proyecto

❌ El Problema

El propietario había contratado un maestro que le construyó una vivienda sin ningún permiso municipal. Peor aún, la construcción tenía problemas estructurales y de habitabilidad. Cuando quiso regularizar, dos arquitectos diferentes le dijeron que era imposible aprobar el proyecto.

🔧 Nuestra Solución

Realizamos una evaluación técnica exhaustiva y encontramos una vía de regularización que otros no vieron. Diseñamos intervenciones mínimas pero estratégicas que permitieron:

  • Cumplir con las exigencias estructurales sin demoler
  • Resolver problemas de habitabilidad (ventilación, iluminación, escape)
  • Preparar una carpeta técnica sólida ante la DOM

⏳ Estado Actual: En Trámite

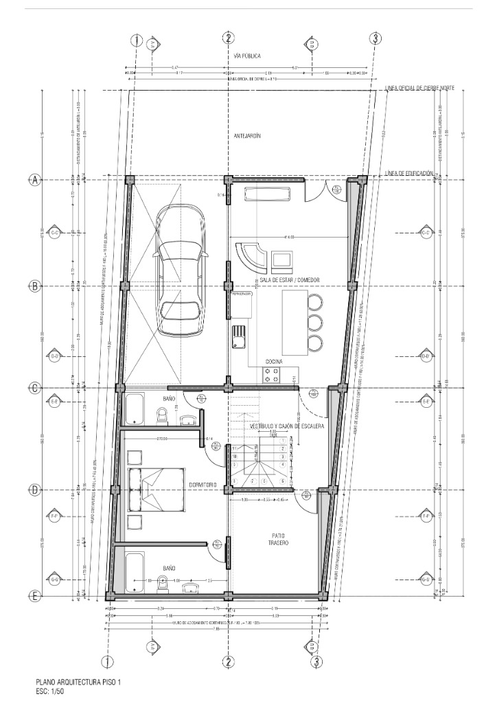
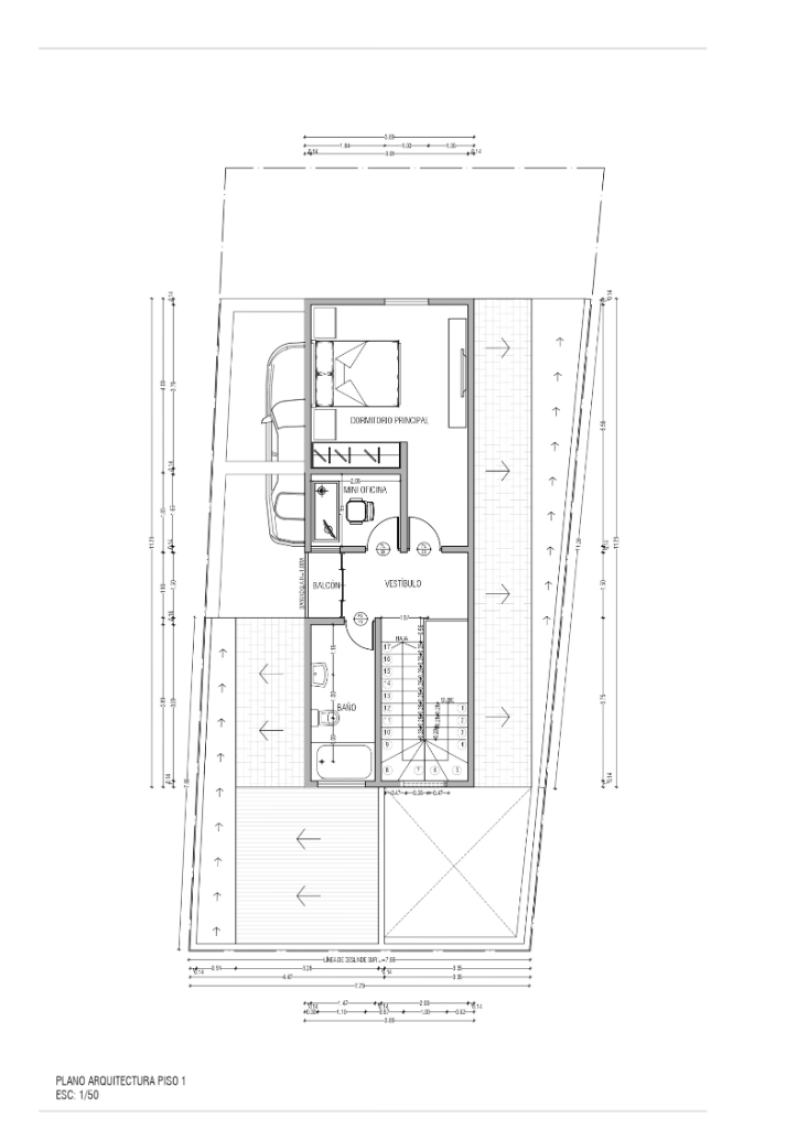
El proyecto ya fue ingresado a la Dirección de Obras Municipales (DOM) de San Bernardo y está en proceso de revisión. Encontramos la solución técnica y confiamos en el resultado positivo. Una vez aprobado, el propietario podrá vender, hipotecar y tener certeza jurídica sobre su propiedad.

Lo que Hicimos

  • Evaluación técnica completa de la construcción existente
  • Diseño de soluciones estructurales mínimamente invasivas
  • Mejoras de habitabilidad conforme a normativa
  • Preparación de carpeta técnica para DOM
  • Gestión y seguimiento del proceso municipal
  • Respuesta a todas las observaciones técnicas

Datos del Proyecto

  • Tipo: Rehabilitación + Regularización
  • Comuna: San Bernardo, RM
  • Año: 2025
  • Estado: ✓ Aprobado DOM
  • Tipología: Vivienda unifamiliar 2 pisos
  • Materialidad: Albañilería y madera
  • Dificultad: Alta (rechazado previamente)

¿Tu Casa También Parece "Imposible" de Regularizar?

No te des por vencido. Casos como este nos demuestran que siempre hay una solución técnica. Evaluamos tu situación sin compromiso.

Solicitar Evaluación Gratuita Consultar por WhatsApp

Respuesta en menos de 48 horas · Sin compromiso