Descripción del Proyecto

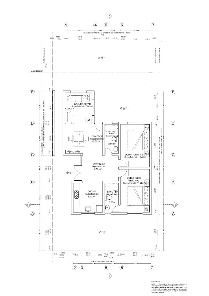
Obra nueva de 1 piso con diseño mediterráneo adaptado al clima y normativa local de Peñaflor. El proyecto incluye antejardín con paisajismo nativo, estacionamiento techado y patio posterior con orientación norte para máximo aprovechamiento solar.

Diseño a medida según requerimientos del cliente, cumpliendo con todas las normativas municipales y optimizando la eficiencia energética de la vivienda.

Datos Técnicos

  • Tipo: Obra Nueva
  • Ubicación: Peñaflor, RM
  • Año: 2024
  • Pisos: 1 piso
  • Estilo: Mediterráneo
  • Características: Antejardín, estacionamiento, patio